JIS F7346 Union Bonnet Globe Valve
JIS F7346 Union Bonnet Globe Valve
- Availability: In Stock
- Product Model: JIS F7346
$0.00
Ex Tax: $0.00
JIS F7346 Union Bonnet Globe Valve
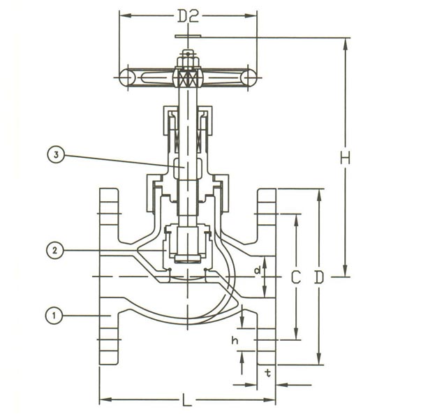
Main Material
1 - Body - Bronze - BC6
2 - Disc - Bronze - BC6
3 - Stem - Brass - C3771BD
Drawing & Dimensions of Union Bonnet Globe Valve

|
Item NO. |
Size |
L |
D |
C |
Number of Holes |
h |
|
F7346-015 |
15 |
100 |
80 |
60 |
4 |
12 |
|
F7346-020 |
20 |
110 |
85 |
65 |
4 |
12 |
|
F7346-025 |
25 |
120 |
95 |
75 |
4 |
12 |
|
F7346-032 |
32 |
140 |
115 |
90 |
4 |
15 |
|
F7346-040 |
40 |
160 |
120 |
95 |
4 |
15 |
Our Products

| Introduction | |
| title2 | Flanges as per JIS B2220 - 5K |
| title7 | Manufactured in accordance to JIS F7400 |